

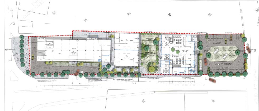
Macallum is an alteration and addition for a series of warehouses located in Lebuh Maccallum, in Pulau Penang. The projects seeks to rejuvenate the block into a F&B hub which also engages with the surrounding context, creating its own cultural hub. The family owned warehouses have a rich history as a timber saw mill facility, and it was fitting that the history of the family be preserved through carefully picking certain elements from the site. The proposal injects an F&B hub, as well as Co-living and co- working spaces into the mix.

(Left image) Among the series of warehouses, is an art deco building which used to house the timber mill paraphernalia. The ground level was proposed as an F&B arcade and dining area, while the upper floors will be converted to a Co- working and co-living facilities.


