
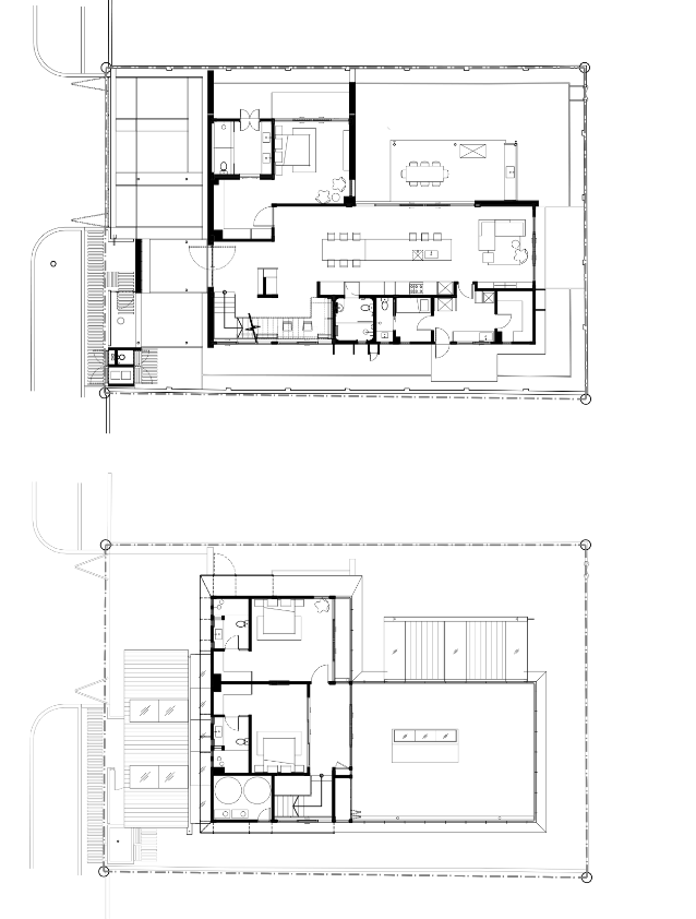
Molek House is a relativley modest-scaled but very carefully- considered residence, by both the client and our team. The main brief was to provide a functional home that would serve the clients well into older age, as well as provide room for their 2 daughters. The decision was made to demolish the existing house for a re-build as the layout was too removed from the client’s brief. The kitchen-dining and barbecue terrace is the central to social and family interactions.
The first floor houses the childrens’ bedrooms and a roofgarden. A rooflight is introduced above the kitchen counter that animates it with changing natural light throughout the day.
Long-term sustainable measures were also an important consideration; hence Solar PV panels, rainwater harvesting, solar water heaters and good cross-ventilation throughout. Broken bricks from the demolished house are reused as cladding to key feature walls.
